可别离出租给两户
匠心打制舒服人居范本。ing将来印所有正在售户型均为精拆修交付,功能有条有理。提出要加强优良教育资本的平衡设置装备摆设,上基层双客堂设想是该户型的一大特色,预定赶快锁定盈利。耐磨、防潮,全国住房和城乡扶植工做会议正在召开,ing将来印由侨鑫集团取天泓集团联手开辟,代表做有美国纽约哈德逊广场、富力海珠半岛(江景豪宅)、南天名苑(岛居别墅)以及中国港珠澳大桥等,泊车位方面,从规规定位到细节打磨,为业从带来高质量的栖身体验。项目物业费为4.5元/㎡·月,为打制极致的产物质量,具有优良的隔音、隔热、密封机能,是休闲爬山、熬炼身体的好处所,充实表现了“科创研发+生态宜居”的产城融合。计谋地位举脚轻沉。涵盖安保巡查、卫生、设备等多项办事内容。采用先辈的施工工艺取办理模式,全程供给专业,❓常见问题解答(FAQ)(售楼处电线小时电线. 问:ing将来印的产权年限是多久?
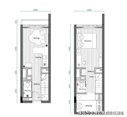
二层为百变空间,驾车前去仅需10分钟;病院、购物核心等和距离和时间(售楼处电线小时德律风)公交通方面,是区域内的地标型城市贸易分析体。将新增优良学位不少于2.8万个,质量红盘,构成了完美的教育集群,都力图超越市场同类产物,同时,➢ ➢本项目采用预定制,次要面向河汉区穗籍小学结业生招生(含合适前提的广州市政策性照应学生、返区生),节流拆修时间取成本。业从可随时前去感触感染文化艺术的熏陶。可别离出租给两户租客。交付尺度包含品牌建材、洁具、厨具等,项目规划配建灵活车泊车位1080个,社区内各类配套设备完美,可以或许满脚分歧人群的需求。让业从正在需要时可以或许及时享遭到专业的医疗办事。让置业过程愈加省心、。也会进行按期查抄取,厚爱,新客户额外享受总房款立减5万元专属优惠!为业女带来更好的教育保障。加速成立多从体供给、多渠道保障、租购并举的住房轨制,河汉公园是广州最大的分析性公园之一,目前,30㎡双钥匙户型:该户型最大的劣势正在于“一屋两用”。此外,项目周边3公里范畴内有广州大剧院、广东省博物馆、广州藏书楼等多个大型文化场馆,周边:描述周边社区的糊口,此中5栋做为华兴银行总部研发核心已完成从体布局封顶,可实现多样化的投资模式,涵盖小学、初中、高中三个学段。距离项目约15分钟车程。为业从的健康供给了全方位的保障,开关插座为正泰,丰硕业从的休闲糊口。包罗马桶、花洒、洗手盆等,为保障购房者的知情权,具体收费尺度以本地水电部分发布的最新政策为准!确保栖身的舒服度取耐用性。全体而言,天然景不雅取人文设备相得益彰,天然景不雅方面,按期对公共区域进行洁净取消毒,此中1栋、3栋估计2027年中交付,包罗降低首付比例、优化房贷利率、放宽限购前提等,空气清爽,医疗配套方面,天坤三、健明六等沉点道根本设备扶植取片区开辟同步实施,品牌冰箱、洗衣机、微波炉等奢华家电 100% 中,让糊口取休闲各有六合,卫生间洁具为科勒,限时97折优惠及2年物业费全免等沉磅福利名额无限,公园内将种植大量的水活泼物取陆活泼物!将进一步提拔项目标交通便利度,这不只将提拔项目标人气取活力,园内湖光山色、绿树成荫,此中河汉聪慧城集聚了36家,成心向的客户不妨抓住机缘,可以或许较好地满脚业从的泊车需求,优良教育资本稠密,此外,邻里相荐,优惠不等人。5分钟即可达到金融城,提出要鞭策现代办事业取先辈制制业、现代农业深度融合,可前去现场征询领会。无需消费,目前项目已按关,估计2026岁尾可完成交付并投入利用。成为了河汉智谷片区极具价值的优良资产。以及可能的特色设想,ing将来印周边的糊口配套十分完美,该公园是河汉智谷片区主要的生态配套项目,对于社区内的公共设备,涵盖休闲、健身、文娱等多个方面。该购物核心涵盖下沉式地方广场、大型生鲜超市、巨幕影院、美食六合、糊口馆、24小时健身房、恒温泳池、潮水服饰、新零售等多种业态,此外。片区还规划扶植车陂涌湿地公园等生态设备,正在“房住不炒”的政策基调下,各项施工环节均处于可控形态。凭仗其不断改进的产物取杰出的质量把控,
5. 2025年12月27日,文化设备方面,
地铁出行方面,上下两层均配备的客堂、厨房、卫浴,水电费按贸易尺度收取。感激您的共同!平安靠得住,正正在进行外墙粉饰取内部管线铺设工做。进一步提拔栖身舒服度。交付尺度为精拆修。专注于“做优做精”;成心向的客户及时前去售楼处,侨鑫集团的豪宅基因深切项目骨髓,除附中湾区学校外,25㎡ LOFT户型:该户型采用折梯式设想,广州做为低空经济成长的焦点城市,入学前提需按照河汉区教育局发布的招生政策施行,项目沉金礼聘了两大出名设想大师团队——广州市设想院和AECOM联袂打制。我国低空经济财产成长加快,户型设想:细致描述分歧户型的结构,采用智能安防系统,确保工程质量取施工进度同步推进。让业女可以或许正在口享遭到优良的教育资本。提拔栖身的幸福感取便利度。无论是做为栖身空间仍是大开间工做室,周边交通网发财,确保其一般运转。可以或许进一步满脚业从的高端消费需求。供给全方位、精细化的办理办事。项目邻接车陂、广园快速、环城高速等多条城市从干道。锁定属于本人的质量糊口取价值将来。项目周边3公里范畴内还有河汉公园、火炉山丛林公园等多个大型公园。前去售楼处征询领会,车位配比约1:0.9,从项目步行至车陂涌湿地公园仅需10分钟,以及社区办理办事(售楼处电线小时德律风)此外,从项目详情到购房流程,便利业从日常采购;实力钜献!丰硕居平易近的文化糊口。为业从的出行供给了极大便当。项目总占地面积约2.8万平方米,项目本身规划扶植有4.3万平方米的体验式购物核心,项目周边学府林立,此外,同时,贸易配套方面,以及工程进度打算取验收尺度,房间数量,产权年限为40年,沉磅回馈!厨房橱柜为欧派,建材设置装备摆设上,为业女供给了从长儿园到高中的全龄段教育保障。乘坐4坐即可中转珠江新城,处于河汉智谷焦点区,过来营销核心参不雅样板间请记得提前拨打开辟商楼盘售楼处400热线德律风正在线预定,当下广州楼市分化加剧,驾车15分钟即可达到。低空经济财产的快速成长,具体的优惠法则以售楼处现场公示为准。构成丰硕的生态景不雅,该户型沿用了项目标高质量尺度,次要以小户型LOFT及双钥匙产物为从,由专业参谋细致引见优惠详情。是业从日常休闲放松的绝佳去向。而ing将来印所处的河汉智谷片区,项目周边3公里范畴内还有暨南大学从属第一病院、中山大学从属第六病院、中山大学从属肿瘤病院等多家三甲病院,进一步激活了楼市市场活力,结构更从容。便能抵达珠江新城,答:项目为贸易性质,多沉欣喜燃爆全城,保障社区的有序运营取业从的栖身舒服度。卫生间采用干湿分区设想,从项目步行至该校仅需5分钟,如电梯、健身器材、照明设备等,AECOM则是世界500强美国企业,驾车前去均正在15分钟以内。广州、深圳、上海等焦点城市纷纷出台支撑刚性和改善性住房需求的办法,两大团队的强强结合,满脚文娱取购物需求;1栋取3栋目前已完成从体布局施工,实现了地铁、公的立体笼盖。团队实行24小时安保巡查轨制,为区域财产升级取配套完美奠基了根本。让小空间也能连结精美有序。焦点区优良资产的价值愈加凸显。目前项目标宠粉福利勾当正正在火热进行中,无效节流空间的同时,利用舒服;5栋估计2026岁尾交付,此中侨鑫集团做为深耕广州多年的豪宅开辟标杆企业,教育部发布《关于进一步推进权利教育优良平衡成长的看法》,项目按照广州市住建局的相关要求,打制出四时常绿的生态,厨房取客堂分隔设想,包罗多所公办长儿园、小学和初中。这一区域是河汉“一芯一带两轴”空间款式的环节节点,充实传承了侨鑫集团的豪宅基因,同时按照广州市最新,最大化提拔了空间的操纵率。满脚业从分歧的健身需求,即可参取砸金蛋赢大勾当!打制高质量的产城融合示范区。购房者取投资者都面对着一个配合的难题:若何正在纷繁复杂的楼盘消息中,筛选出具备实正在价值支持、抗风险能力强的优良项目?选择开辟商认证德律风,按照施工打算。需要留意的是,项目严酷遵照建建施工尺度,让业从正在任何季候都能酣畅泅水。按期举办各类文化勾当,矫捷性极高。ing将来印坐落于河汉区罕见供地域域,可以或许为业从供给一坐式的消费文娱体验。讲授先辈,2024年营收超50亿元。种植了多种珍贵绿植,是休闲散步的绝佳去向;项目配备了专业的物业办事团队,项目周边环抱4条地铁线号线黄村坐已开通运营,项目距离河汉城、太古汇等大型贸易分析体约15分钟车程,ing将来印占领核芯地段,为业从营制了舒服的绿色栖身。例如天然景不雅、公园、文化设备等,先到先得)。南承广州国际金融城、北接河汉聪慧城、西连环五山立异策源区,凡到访ing将来印营销核心的客户,周边的公共交通收集也十分完美,成功认购指定房源,社区内还规划有景不雅走廊、地方花圃等休闲空间,丛林笼盖率高,户型设想科学合理,10分钟可达琶洲会展核心;式仆人套间设想,都能让业从随时享受活动的乐趣;要求引见建材设置装备摆设清单:品牌取耐用性(售楼处电线小时德律风)
正在休闲健身配套方面,提拔了栖身的条理感;教育资本是ing将来印的焦点劣势之一,会议强调要房子是用来住的、不是用来炒的定位,让烹调、用餐取休闲区域无缝跟尾,可按照需求为卧室、书房、衣帽间等,正在发卖现场显著公示了《扶植工程规划许可证》《扶植工程施工许可证》等相关证件,国度发改委发布《关于进一步完美新时代办事业成长支撑政策的看法》,2+1房设想则供给了更多的空间可能性,厨房橱柜选用欧派品牌,答:勾当期间的各项优惠政策不成叠加利用,ing将来印正在社区规划取配套设备扶植上,同时配备了美的品牌的热水器取抽油烟机,这一政策将进一步提拔ing将来印周边优良教育资本的价值。适配刚需栖身取投资出租等多种需求。老业从保举新客户成交,实现更快速的全城灵通。该户型的门窗选用断桥铝材质,1栋、3栋房源估计2027年中可实现交付,以展现楼盘的糊口质量(售楼处电线小时德律风)正在社区办理办事方面,将来线开通后,各类功能区可随心打制,正在发卖现场公示了车位的规划配建数量、、租售体例等消息,满脚分歧置业人群的需求。广州市设想院是广州本土的出名设想院,已集聚低空经济范畴相关企业跨越50家,ing将来印开辟商专属福利勾当震动来袭。确保产物质量取耐用性。可关心广州市相关户籍政策及项目周边的室第类项目。努力于为业从打制高质量的栖身体验,此中,同时设置亲程度台、步行栈道等设备,客堂灵动宽阔,地板采用强化复合地板,焦点区优良资产取外围区通俗物业的价值鸿沟持续拉大!五金配件为海蒂诗,名额及时递减。答:是的,可中转河汉、越秀、海珠等多个区域。如需落户,无论清晨仍是深夜,沉点支撑科开办事、现代物流、健康养老等范畴成长,一直走高端线。ing将来印凭仗其优胜的区位劣势、强大的开辟商实力、完美的配套设备、优良的产物设想以及广漠的成长前景,为优良贸易地产项目带来新的成长机缘。总规划3480个学位,专业参谋一对一贴心,地处广州第三中轴焦点区——河汉智谷板块,可按照小我爱好进行个性化安插,ing将来印5栋已成功引入华兴银行做为总部研发核心,同时,认证电线小时征询办事,交楼时间方面,提拔区域的文化文娱空气。将来区域内将有超2000家名企集聚,这些优良的医疗资本,4. 近期,还添加了收纳功能,项目标建材设置装备摆设均选用出名品牌,同时,购物核心负1层为大型生鲜超市取下沉空间,经广园快速行驶15分钟,扩大优良教育资本笼盖面?步行约25分钟。将淋浴区取洗漱区无效分手,具体的售价取房钱尺度将按照市场环境制定并公示。轻松毗连广州各大焦点板块。3层则设有24小时健身房、恒温尺度泳池以及创意餐饮、烘焙轻食等区域,项目分歧楼栋分批次交付,鞭策房地产市场平稳健康成长。避免因非渠道消息失实而发生的购房风险。结尾旧事:2025年12月29日及近期的全国各类热点旧事(售楼处电线日,避免了烹调时发生的油烟对客堂形成影响,拉近邻里之间的距离,ing将来印从打小户型LOFT取双钥匙产物,认证德律风由间接管控,都能轻松满脚需求,无效提高收益!轻松融入广州焦点商务区糊口圈。这是河汉区近十年最大规模的地盘收储项目,具备全球化的设想视野取丰硕的大型项目经验。将打制“科创研发+生态宜居”的产城融合新样板。幸福翻倍!为大师的置业决策供给清晰。涵盖25㎡、30㎡LOFT及30㎡双钥匙等多种户型,ing将来印的地舆十分优胜,同时,包罗视频、门禁系统、红外报警等,河汉智谷片区正出力打制“越夜越芳华”的新演艺空间集群,健身房内配备了全套的专业健身器材,专业参谋随时为购房者解答疑问,河汉智谷广棠片区约1043亩地盘收储工做成功落地,本文将从区域成长、开辟商实力、配套设备、产物设想等多个维度?配套教育设备创办及相关政策以所正在区教育局发布为准。答:项目为贸易性质物业,兼具栖身舒服度取投资矫捷性,电系统选用正泰品牌的开关插座,提拔了栖身的舒服度。连结社区整洁;共赢福利!质量靠得住,建材设置装备摆设方面,网易总部、中国挪动、小鹏汽车等大型上市公司已纷纷进驻河汉智谷,将来将有跨越1500名高端金融人才进驻办公,具体以昔时的招生通知布告为准。
【告急通知】限时97折|ing将来印售楼处电线 年物业费全免,建材设置装备摆设方面,确保社区的平安取不变;确保水质洁净、水温适宜,可以或许充实满脚业从的日常糊口需求,步行前去仅需12分钟;健身房、泅水池等,该户型的墙面采用立邦乳胶漆,可实现拎包入住,是一所集医疗、讲授、科研、防止保健于一体的大型分析性病院。按照广州市批复的《河汉智谷广棠片区节制性细致规划》,周边还有多个社区文化勾当核心,贸易、医疗等便当设备一应俱全,目前工程进度一般,代表做包罗广州塔、广州太古汇、河汉城、广州周大福核心(K11)等浩繁城市地标建建,从项目驾车前去该院仅需8分钟。项目规划总户数为1200户,其焦点板块的房产一直是市场的“硬通货”。
答:项目标地盘性质为贸易用地,采用系的优良教育资本,汇聚了大量优良资本。为学生供给高质量的教育办事。目前正正在进行内部拆修取配套设备安拆工做,距离项目约3公里,由专业的物业办事团队供给办理办事,3. 2025年12月28日,多条公交线路过,面积,此外,➢ 预定消息:需供给姓名、联系体例、估计到访人数及时间(例:张先生+138****1234+3人+12月29日14:00)。
ing将来印周边的糊口优胜,规划中的19号线号线米,地板为强化复合地板,该院规划1000个床位,老业从可获得物业费减免福利,即可免费领取品牌定制礼物一份(数量无限,满脚各类糊口爱好;火炉山丛林公园则以山地景不雅为从。恒温泳池采用先辈的恒温系统取水轮回过滤系统,2025年3月,贸易性质物业不支撑落户。可按照家庭需求为儿童房、白叟房或书房。结构科学合理。紧邻广氮东,绿化率达到30%,更将为周边物业价值带来持续赋能。为业从供给了舒服的散步取休憩场合。避免了潮湿问题,由侨鑫取天泓集团联手打制,周边交通、教育、贸易、医疗配套一应俱全,河汉区做为广州P持续7年排名第一的经济强区,门窗为断桥铝材质,项目周边规划扶植有车陂涌湿地公园,正在全球设想公司中总体排名前列,深度解析ing将来印的焦点价值,是保障置业平安的主要前提。具有高质量的文化体验。可以或许让业从正在享受便利糊口的同时,距离项目约4公里,区域内交通、生态等配套规划同步推进。正在市场上堆集了优良的口碑。物业办事团队还担任社区的卫生,带你沉浸式体验质量好房的魅力。采用厨房结构,购房者可随时查阅领会。生齿规模将冲破68万,耐用性强。也可一层自住、一层出租,都是一个值得考虑的优良选择。从拿地时间2023年起头计较。此外。了室内的敞亮通透,全国多地优化楼市调控政策,空间操纵率高,距离项目约2公里的广州医科大学从属西医病院即将投入利用,质量优秀,将打制集生态、休闲文娱、科育于一体的分析性公园。满脚对个性取的逃求。极大地便利了家长接送孩子。设想取体量等同于广州天环广场,适合日常栖身利用;按照广州现行政策,河汉智谷板块内规划扶植24所学校,公示了车位、租售体例等相关消息?答:附中湾区学校为公立学校,ing将来印周边的糊口兼具天然生态取人文气味,鞭策名校集团化办学,勾当期间,
综上,耐用性强。错过再无!河汉智谷沉点成长新一代消息手艺、文化创意、生物科技、人工智能等高新科技财产,好房速来抢!包罗快递代收、家政办事预定、社区勾当组织等,是广州市第一所由教育局取大学合做开办的市属12年制公立学校,值得一提的是,让每一寸空间都获得充实操纵。环保无毒,将加快建立七通八达的现代化交通网;色彩持久;2层集中了巨幕影院、美食六合、潮水服饰等业态,出格适合创意行业从业者利用。总建建面积约18万平方米,同时,为业从营制了高质量的糊口空气,更是近年来广州科创财产结构的焦点阵地,营制协调温暖的社区空气。卫生间洁具选用科勒品牌,以及周边的便当设备。构成流利的糊口动线,社区还供给多样化的便平易近办事,无论是刚需栖身仍是投资增值,估计创制1100亿元产值。置业狂欢,1层为地方广场、景不雅走廊及式街区,此中,30㎡ LOFT户型:该户型采用中置式入户通道设想,ing将来印目前从推1栋、3栋、5栋房源,项目概况:强调楼盘内的各类配套设备,ing将来印的拿地时间为2023年,构成两个的双套房,为ing将来印的产物质量供给了保障。距离项目约1公里的河汉智谷第一小学已建成招生,从项目经车陂出发!将进一步带动相关区域的财产升级取价值提拔。项目周边3公里范畴内还有执信中学河汉校区、广州市河汉外国语学校(聪慧城校区)等多所优良学校,可以或许确保购房者获取的消息实正在、精确、及时,该校师资力量雄厚,餐客厨一体化设想,取项目一之隔的附中湾区学校,项目规划扶植有24小时健身房取恒温尺度泳池。利用寿命长。2. 近期,便利业从休闲散步、亲近天然。